
HD Typ elektrického jeřábu s jedním nosníkem s elektrickým zdvihem
Evropský žeriav s jednoduchým nosníkem je kompaktní zdvihací stroj navržený a vyráběný v souladu s normou FEM a DIN, který s vyspělou technologií a krásným designem. Rozdělena na obecný typ a typ závěsu, podporující použití evropského standardního elektrického výtahu, vhodného pro manipulaci s dílenskými a skladovými materiály, přesné montážní díly pro velké díly a další místa.
HD Typ elektrického jeřábu s jedním nosníkem s elektrickým zdvihem
Stručný popis:
Evropský žeriav s jednoduchým nosníkem je kompaktní zdvihací stroj navržený a vyráběný v souladu s normou FEM a DIN, který s vyspělou technologií a krásným designem. Rozdělena na obecný typ a typ závěsu, podporující použití evropského standardního elektrického výtahu, vhodného pro manipulaci s dílenskými a skladovými materiály, přesné montážní díly pro velké díly a další místa.

Mohlo by se široce využívat při výrobě strojů, hutnictví, ropě, petrifikaci, přístavu, železnici, civilní letectví, potravinářství, výroba papíru, stavebnictví, dílny elektronického průmyslu, skladování a další manipulace s materiály. aplikované na manipulaci s materiálem, které vyžadují přesné polohování, velká přesná montážní situace.

Podrobné obrázky:

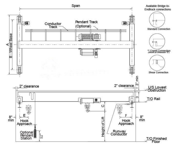
Výkres náčrtu:

Technické parametry:
Rozpětí | m | 7.5 | 10.5 | 13.5 | 16.5 | 19.5 | 22.5 | 25.5 |
Kapacita | t | 1 ~ 12,5 t | ||||||
Celková váha | kg | 1781 ~ 12086 | ||||||
Hmotnost vozíku | kg | 405 ~ 740 | ||||||
Max. Zatížení kola | kn | 13,5 ~ 90,94 | ||||||
Cestovní železnice | P24 ~ P43 | |||||||
Rychlost zvedání | m / min | 0,8 / 5 | 0,8 / 5 | 0,8 / 5 | 0,8 / 5 | 0,8 / 5 | 0,8 / 5 | 0,8 / 5 |
Výška zdvihu | m | ≥ 6 | ≥ 6 | ≥ 6 | ≥ 6 | ≥ 6 | ≥ 6 | ≥ 6 |
Celkový výkon motoru | kw | 4.31 | 4.31 | 4.31 | 4.31 | 4.67 | 4.67 | 4.67 |
Rychlost jeřábu | m / min | 3-30 | 3-30 | 3-30 | 3-30 | 3-30 | 3-30 | 3-30 |
Rychlost vozíku | m / min | 2-20 | 2-20 | 2-20 | 2-20 | 2-20 | 2-20 | 2-20 |
Pracovní povinnost | M5 / A5 | |||||||


English
Ar hñä ar Keleitaluoaotuomi
Nederlands
Việt Nam
한국어
Italiano
Español
Български
Polski
Norsk
Kreyòl Ayisyen
Français





